V sklopu dejavnosti Mreže za prostor je METRO SR avgusta 2013 prispeval članek na temo demokratičnega urbanizma. Članek je bil izvirno objavljen na spletnih straneh Mreže za prostor oz. IPoP.
Desetletje participativnega prostorskega načrtovanja na Dobrni
22. 08. 2013
dr. Mojca Furman Oman, zavod Metro SR in Urbanisti d.o.o.
V mesecu juniju je na Fakulteti za arhitekturo v Ljubljani potekal strokovni posvet Pametni urbanizem 2013 na temo: Graditi demokracijo - lokalni urbanizem. Gre za enega redkih strokovnih srečanj v Sloveniji, na katerem se predstavljajo številni primeri dobre prakse, tokrat na izredno aktualno izbrano tematiko demokratičnega urbanizma. Številni udeleženci posveta - udeležba gotovo odraža zainteresiranost stroke za podobna srečanja - so v dopoldanskem delu spremljali teoretska predavanja, v popoldanskem delu pa strokovne razprave; ob tem je bila na temo dobrih praks pripravljena tudi spremljajoča razstava.
Med drugim je bilo v okviru strokovnih razprav predstavljeno delo v Občini Dobrna, ki ga v biroju Urbanisti, d.o.o. kontinuirano izvajamo več kot desetletje, in predstavlja po našem mnenju primer dobre prakse lokalnega urbanizma oz. prostorskega načrtovanja. Kljub temu, da Občina Dobrna nima lastnega strokovnega kadra (urbanistov, arhitektov), je s svojim načinom sodelovanja s stroko in javnostjo lep in posnemanja vreden model.
Občina Dobrna je postala samostojna občina leta 1998. Iz položaja obrobne krajevne skupnosti se je znašla v položaju odločevalca o lastnem razvoju. Danes lahko rečemo, da je bila njena odločitev - ki je vključevala razpis natečaja za pridobitev prostorsko programskih smernic razvoja celotne občine (2001) - še kako daljnovidna. Z natečajem (sodelovale so tri skupine, Geoplan, Pilih projekt ter Gorazd in Mojca Furman Oman, rezultat pa so bile tri vizije prostorskega razvoja občine) se je namreč začelo desetletje uspešnega, strokovnega in demokratičnega urbanizma v občini, ki je rezultiralo strokovne in demokratično sprejete rešitve, kraju pa dalo nov zagon, kar se danes kaže na povečanju števila prebivalcev, uspešnem razvoju termalnega zdravilišča, trajnostni rabi prostora, večjemu številu obiskovalcev in splošnem zadovoljstvu občanov v njihovem lastnem prostoru.
V letu 2002 je nato Občina ob sofinanciranju ministrstva, pristojnega za prostor, organizirala interdisciplinarno urbanistično delavnico Razvojna vizija Občine Dobrna. Avtorja delavnice sva bila Gorazd in Mojca Furman Oman. Delavnica je bila zastavljena kot kontinuiran enoletni projekt, razdeljen v več faz, ki je vključeval tri bistvene ravni odločevalcev in usmerjevalcev prostorskega razvoja občine - lokalno skupnost, stroko in javnost. Vse tri skupine so se vključevale v posamezne faze: izvedeno je bilo anketiranje po gospodinjstvih celotne občine, organizirana je bila delavnica z interesnimi skupinami (predstavniki lokalne skupnosti, predstavniki društev in lastniki strateško pomembnih zemljišč), izveden je bil strokovni posvet z vabljenimi predavatelji (prof. mag. Gabrijelčič in Marko Vučina, udia). Na podlagi aktivnosti in na podlagi analize stanja sva avtorja delavnice izdelala Razvojno vizijo Občine Dobrna (2003), ki je bila po vseh usklajevanjih in preveritvah, tako strokovnih kot laičnih, temeljeni dokument, na katerem Občina Dobrna še danes gradi svoj razvoj.
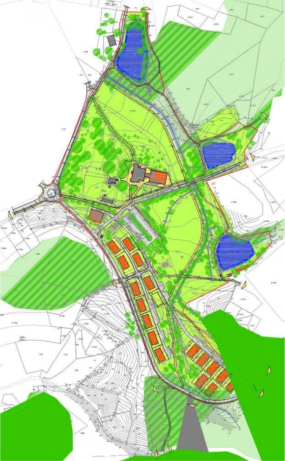
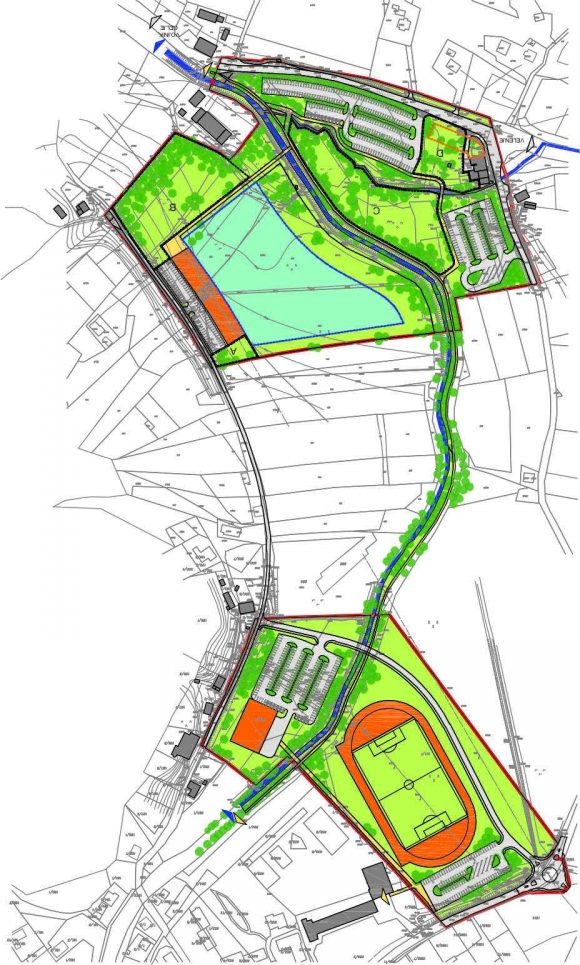
Na podlagi tako oblikovanega konsenza je nato Občina Dobrna v izjemno kratkem času (2004) sprejela spremembe in dopolnitve t.i. prostorskega plana, ki so mu sledili trije izredno pomembni in obsežni izvedbeni prostorski akti, predvsem na področju turistične infrastrukture. Tudi strokovne podlage za izvedbene akte je Občina Dobrna pridobivala na enega bolj demokratičnih in strokovno smiselnih načinov - variantno so podlage pripravljale tri skupine strokovnjakov (FA, API in ABZ), delo pa so izvajale skozi štiri urbanistične delavnice, ki jih je vodil Gorazd Furman Oman ter na podlagi njihovih usmeritev tudi izdelal izvedbene prostorske akte (2005). Ti omogočajo razvoj zdraviliškega kompleksa (širše območje Term), omogočajo prenovo izjemnega objekta kulturne dediščine (Novi grad) za turistične namene, dajejo pogoje za gradnjo varovanih stanovanj, večnamenske dvorane, športnih igrišč in kompleksa zunanjih bazenov (Dobrna z okolico). Nekatere od teh investicij so danes že izvedene.
Na podlagi razvojne vizije so bile nato skladno z novim zakonodajnim okvirjem izdelane Strokovne podlage za občinski prostorski načrt občine Dobrna (2008), avtorjev Gorazda in Mojce Furman Oman. Na podlagi teh je Občina Dobrna kot ena prvih v Savinjski regiji sprejela občinski prostorski načrt (2012), s katerim je dobila prostorski akt »nove generacije«, ki vsebinsko še vedno sloni na desetletju strokovnega dela Občine Dobrna.
Občina Dobrna je s svojim pristopom k oblikovanju prostorskega razvoja, ki vključuje obsežno strokovno delo in predvsem neformalno participacijo občanov skozi različne oblike demokratičnega urbanizma (ankete, delavnice, posveti, predavanja, javne predstavitve, obveščanje skozi številne članke v lokalnem mesečniku), svetel primer slovenskega prostorskega načrtovanja.
Žal je tendenca v (obstoječih in načrtovanih) zakonodajnih okvirih popolnoma zanemarila opisane vidike prostorskega načrtovanja. Izredno birokratski postopki, sektorsko planiranje in velik pomen individualnih pobud so povsem v nasprotju z načelom strokovnosti, ki se je v prostorskem načrtovanju odražalo vse do leta 2007.
Vir slikovnega gradiva: arhiv Urbanisti, d.o.o.
Desetletje participativnega prostorskega načrtovanja na Dobrni
22. 08. 2013
dr. Mojca Furman Oman, zavod Metro SR in Urbanisti d.o.o.
V mesecu juniju je na Fakulteti za arhitekturo v Ljubljani potekal strokovni posvet Pametni urbanizem 2013 na temo: Graditi demokracijo - lokalni urbanizem. Gre za enega redkih strokovnih srečanj v Sloveniji, na katerem se predstavljajo številni primeri dobre prakse, tokrat na izredno aktualno izbrano tematiko demokratičnega urbanizma. Številni udeleženci posveta - udeležba gotovo odraža zainteresiranost stroke za podobna srečanja - so v dopoldanskem delu spremljali teoretska predavanja, v popoldanskem delu pa strokovne razprave; ob tem je bila na temo dobrih praks pripravljena tudi spremljajoča razstava.
Med drugim je bilo v okviru strokovnih razprav predstavljeno delo v Občini Dobrna, ki ga v biroju Urbanisti, d.o.o. kontinuirano izvajamo več kot desetletje, in predstavlja po našem mnenju primer dobre prakse lokalnega urbanizma oz. prostorskega načrtovanja. Kljub temu, da Občina Dobrna nima lastnega strokovnega kadra (urbanistov, arhitektov), je s svojim načinom sodelovanja s stroko in javnostjo lep in posnemanja vreden model.
Občina Dobrna je postala samostojna občina leta 1998. Iz položaja obrobne krajevne skupnosti se je znašla v položaju odločevalca o lastnem razvoju. Danes lahko rečemo, da je bila njena odločitev - ki je vključevala razpis natečaja za pridobitev prostorsko programskih smernic razvoja celotne občine (2001) - še kako daljnovidna. Z natečajem (sodelovale so tri skupine, Geoplan, Pilih projekt ter Gorazd in Mojca Furman Oman, rezultat pa so bile tri vizije prostorskega razvoja občine) se je namreč začelo desetletje uspešnega, strokovnega in demokratičnega urbanizma v občini, ki je rezultiralo strokovne in demokratično sprejete rešitve, kraju pa dalo nov zagon, kar se danes kaže na povečanju števila prebivalcev, uspešnem razvoju termalnega zdravilišča, trajnostni rabi prostora, večjemu številu obiskovalcev in splošnem zadovoljstvu občanov v njihovem lastnem prostoru.
V letu 2002 je nato Občina ob sofinanciranju ministrstva, pristojnega za prostor, organizirala interdisciplinarno urbanistično delavnico Razvojna vizija Občine Dobrna. Avtorja delavnice sva bila Gorazd in Mojca Furman Oman. Delavnica je bila zastavljena kot kontinuiran enoletni projekt, razdeljen v več faz, ki je vključeval tri bistvene ravni odločevalcev in usmerjevalcev prostorskega razvoja občine - lokalno skupnost, stroko in javnost. Vse tri skupine so se vključevale v posamezne faze: izvedeno je bilo anketiranje po gospodinjstvih celotne občine, organizirana je bila delavnica z interesnimi skupinami (predstavniki lokalne skupnosti, predstavniki društev in lastniki strateško pomembnih zemljišč), izveden je bil strokovni posvet z vabljenimi predavatelji (prof. mag. Gabrijelčič in Marko Vučina, udia). Na podlagi aktivnosti in na podlagi analize stanja sva avtorja delavnice izdelala Razvojno vizijo Občine Dobrna (2003), ki je bila po vseh usklajevanjih in preveritvah, tako strokovnih kot laičnih, temeljeni dokument, na katerem Občina Dobrna še danes gradi svoj razvoj.
Na podlagi tako oblikovanega konsenza je nato Občina Dobrna v izjemno kratkem času (2004) sprejela spremembe in dopolnitve t.i. prostorskega plana, ki so mu sledili trije izredno pomembni in obsežni izvedbeni prostorski akti, predvsem na področju turistične infrastrukture. Tudi strokovne podlage za izvedbene akte je Občina Dobrna pridobivala na enega bolj demokratičnih in strokovno smiselnih načinov - variantno so podlage pripravljale tri skupine strokovnjakov (FA, API in ABZ), delo pa so izvajale skozi štiri urbanistične delavnice, ki jih je vodil Gorazd Furman Oman ter na podlagi njihovih usmeritev tudi izdelal izvedbene prostorske akte (2005). Ti omogočajo razvoj zdraviliškega kompleksa (širše območje Term), omogočajo prenovo izjemnega objekta kulturne dediščine (Novi grad) za turistične namene, dajejo pogoje za gradnjo varovanih stanovanj, večnamenske dvorane, športnih igrišč in kompleksa zunanjih bazenov (Dobrna z okolico). Nekatere od teh investicij so danes že izvedene.
Na podlagi razvojne vizije so bile nato skladno z novim zakonodajnim okvirjem izdelane Strokovne podlage za občinski prostorski načrt občine Dobrna (2008), avtorjev Gorazda in Mojce Furman Oman. Na podlagi teh je Občina Dobrna kot ena prvih v Savinjski regiji sprejela občinski prostorski načrt (2012), s katerim je dobila prostorski akt »nove generacije«, ki vsebinsko še vedno sloni na desetletju strokovnega dela Občine Dobrna.
Občina Dobrna je s svojim pristopom k oblikovanju prostorskega razvoja, ki vključuje obsežno strokovno delo in predvsem neformalno participacijo občanov skozi različne oblike demokratičnega urbanizma (ankete, delavnice, posveti, predavanja, javne predstavitve, obveščanje skozi številne članke v lokalnem mesečniku), svetel primer slovenskega prostorskega načrtovanja.
Žal je tendenca v (obstoječih in načrtovanih) zakonodajnih okvirih popolnoma zanemarila opisane vidike prostorskega načrtovanja. Izredno birokratski postopki, sektorsko planiranje in velik pomen individualnih pobud so povsem v nasprotju z načelom strokovnosti, ki se je v prostorskem načrtovanju odražalo vse do leta 2007.
Vir slikovnega gradiva: arhiv Urbanisti, d.o.o.